in 28213 Bremen
- Personenaufzug
- Bad mit Fußbodenheizung u. Waschmaschinenanschluss
- Parkettboden
- 2 Balkone
- Kellerraum
- Tiefgaragen-Stellplatz
- Einbauküche mit E-Geräten
- gemeinschaftlicher Fahrradraum
- Abstellraum in der Wohnung
- Einbausafe vorhanden
Energieangaben:
Passtyp: Verbrausausweis
Datum der Ausstellung: 14.05.2019
Gültig bis: 13.05.2029
Effiziensklasse: D
Energiebedarf: 126 kWh/(m²a)
Wesentlicher Energieträger: Erdgas L
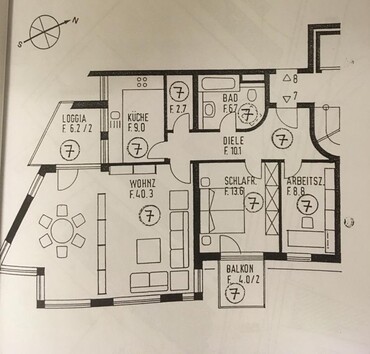
Willkommen in Ihrem neuen Zuhause in der lebendigen Stadt Bremen! Diese charmante Etagenwohnung zur Miete bietet Ihnen auf ca. 93 m² Wohnfläche ein komfortables und stilvolles Wohnerlebnis. 1996 erbaut, verbindet das Gebäude moderne Annehmlichkeiten mit einem soliden Design.
Die Wohnung bietet insgesamt drei Zimmer, darunter zwei gemütliche Schlafzimmer (eins mit Zugang zum Balkon), die ausreichend Platz für Ruhe und Erholung bereithalten. Das geräumige Badezimmer ist praktisch und geschmackvoll gestaltet und verfügt über eine Fußbodenheizung und einen Waschmaschinenanschluss, Badewanne und separater Dusche.
Ein besonderes Highlight der Wohnung sind die zwei Balkone, die Ihnen einen wunderbaren Rückzugsort im Freien bieten sowie der Garagenstellplatz.
Das helle Wohnzimmer verfügt, wie alle Wohnräume, über Parkettboden und verleiht der Wohnung damit eine behagliche Atmosphäre. Hier findet eine gemütliche Ess- und Sofaecke ausreichend Platz und Sie haben von hier Zugang zu einem weiteren, etwas größeren Balkon mit Südausrichtung.
Stauraum ist in dieser Wohnung ebenfalls kein Problem, da sich in der Wohnung ein Abstellraum befindet und Ihnen zusätzlich im Kellerraum zur Verfügung steht. Zudem steht Ihnen der gemeinschaftliche Fahrradraum zur Verfügung.
Die Wohnung wird ab dem 1. April 2026 verfügbar sein, ggf. auch schon früher und könnte genau das sein, wonach Sie gesucht haben. Nutzen Sie diese Gelegenheit und sichern Sie sich eine Wohnfläche, die durch ihre Zweckmäßigkeit und ihr angenehmes Wohnen überzeugt. Kontaktieren Sie uns für weitere Informationen oder eine Besichtigung. Willkommen in Ihrem neuen Zuhause in Bremen!
* Bitte beachten Sie, dass keine Haustiere erwünscht sind und eine Mindestmietdauer von zwei Jahren angedacht ist sowie eine Index-Miete.
Die angebotene Etagenwohnung befindet sich in einer der begehrtesten Lagen Bremens, einem Stadtteil, der durch seine harmonische Kombination aus urbaner Dynamik und erholsamen Grünflächen besticht. Die Gegend zeichnet sich durch ihr charmantes Wohnumfeld und eine exzellente Infrastruktur aus, die alle Annehmlichkeiten des täglichen Lebens in fußläufiger Nähe bietet.
Die Umgebung bietet eine Vielzahl von Einkaufsmöglichkeiten, gemütlichen Cafés und Restaurants, die zu kulinarischen Erkundungen einladen. Zudem ist das öffentliche Verkehrsnetz hervorragend ausgebaut, was eine schnelle und unkomplizierte Anbindung an das Stadtzentrum und andere Stadtteile ermöglicht. Auch die Nähe zu verschiedenen Bildungseinrichtungen und Gesundheitseinrichtungen unterstreicht die Attraktivität dieser Lage.
Für Naturliebhaber und Erholungssuchende stehen zahlreiche Parks und Grünflächen zur Verfügung, die zum Spazierengehen, Joggen oder einfach zum Entspannen einladen. Diese Lage bietet somit eine ideale Mischung aus urbanem Leben und natürlicher Erholung, was sie zu einer begehrten Adresse für unterschiedlichste Lebensstile macht.
Ansprechpartner: Simone Oertzen 0421-2016010
Alle Angaben sind ohne Gewähr und basieren ausschließlich auf Informationen, die uns von unserem Auftraggeber zur Verfügung gestellt wurden. Wir übernehmen keine Gewähr für die Vollständigkeit, Richtigkeit und Aktualität dieser Angaben.
