in 28359 Bremen
- Parkettböden
- Doppelgarage
- Garten mit großer Südterrasse
- moderne Bäder
- großzügige, offene Einbauküche
- Vorbereitung für Wärmepumpe
Energieangaben:
Passtyp: Verbauchsausweis
Gültig bis: 23.06.2033
Effiziensklasse: C
Energiebedarf: 87,5
Wesentlicher Energieträger: Erdgas
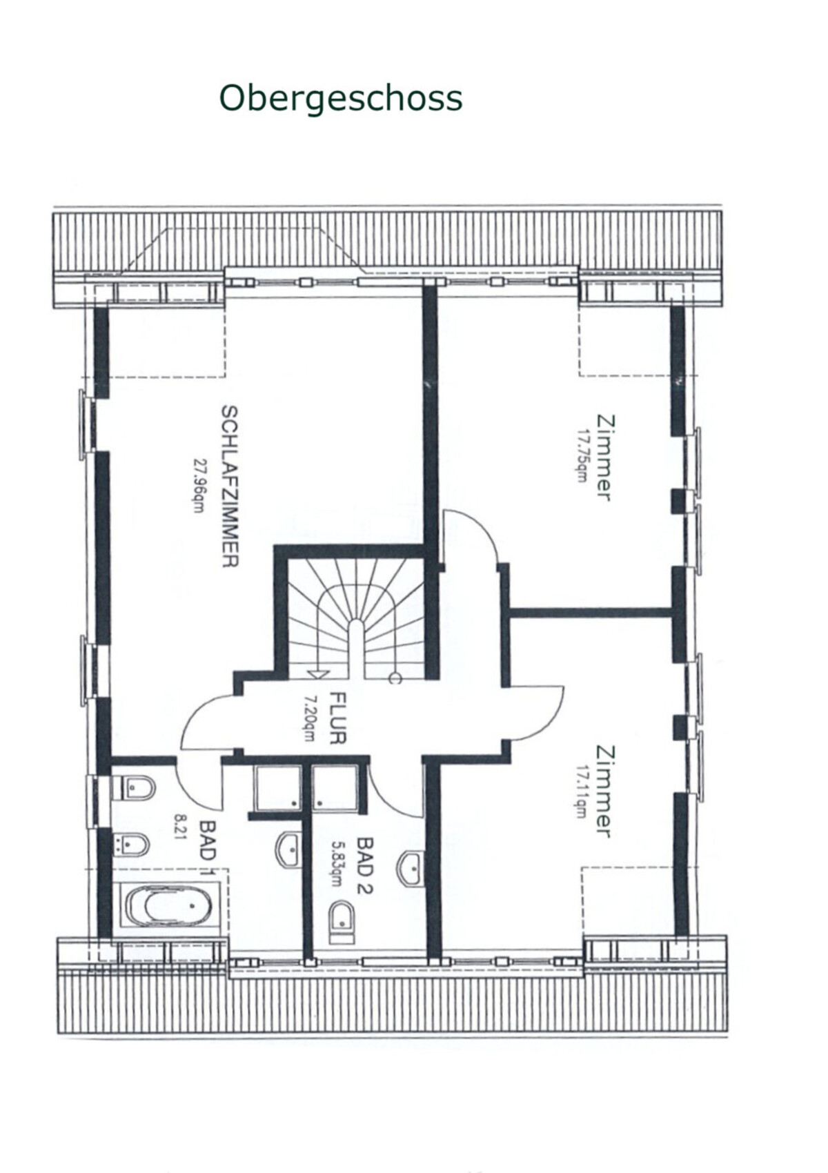
Dieses neuwertige Einfamilienhaus, erbaut im Jahr 2007, bietet Ihnen und Ihrer Familie ein modernes und komfortables Wohnerlebnis. Auf einem großzügigen Grundstück von ca. 495 m² genießen Sie Privatsphäre und Ruhe, während Ihnen die geschickte Raumaufteilung auf drei Etagen mit einer Gesamtwohnfläche von ca. 205 m² ausreichend Platz bietet.
Das Haus besticht durch seine moderne, zeitlose Architektur und eine gute Bauqualität. Mit insgesamt fünf geräumigen Zimmern, darunter drei komfortable Schlafzimmer, ist ausreichend Raum für individuelle Rückzugsorte und gemeinsames Familienleben vorhanden. Zwei stilvoll gestaltete Badezimmer sorgen für zusätzlichen Komfort und Bequemlichkeit im Alltag.
Der helle und offene Wohnbereich lädt zur Entspannung und zum geselligen Beisammensein ein. Die angegliederte Terrasse bietet einen herrlichen Ort für sonnige Stunden im Freien und erweitert den Wohnraum nach draußen. Die Küche, modern und voll ausgestattet, lässt das Herz jedes Hobbykochs höherschlagen.
Zusätzlich zur Wohnfläche umfasst das Haus eine Nutzfläche von ca. 46 m², die vielseitig verwendbar ist, sei es als Garage, Lagerfläche, Werkstatt oder Hobbyraum.
Lassen Sie sich von dieser einzigartigen Immobilie begeistern und erleben Sie modernen Wohnkomfort in bester Lage. Dieses Einfamilienhaus wartet darauf, von Ihnen mit Leben erfüllt zu werden! Vereinbaren Sie noch heute einen Besichtigungstermin und entdecken Sie Ihr neues Zuhause.
Die von uns im Alleinauftrag angebotene Immobilie befindet sich in einer der begehrtesten Wohngegenden von Bremen, eingebettet in eine verkehrsberuhigte und grüne Umgebung. Die Nachbarschaft zeichnet sich durch ihre hervorragende Infrastruktur und die Nähe zu Bildungs- und Freizeiteinrichtungen aus. Die Umgebung bietet eine harmonische Balance zwischen urbanem Leben und natürlicher Kulisse.
Die Entfernung zu mehreren renommierten Schulen, darunter Grund-, Real- und Gymnasialschulen, beträgt lediglich etwa einen Kilometer, was die Lage besonders attraktiv für Familien macht. So befinden sich Geschäfte des täglichen Bedarfs, Ärzte, Restaurants, Bäcker und Freizeitangebote wie der Rhododendron-Park, der Golfclub Oberneuland, der Bremer Hockey-Club, der Hubertus Reitverein Bremen oder diverse Spielplätze in der näheren Umgebung.
Das Umfeld lädt zu ausgedehnten Spaziergängen und Radtouren ein, während gleichzeitig die Bremer Innenstadt mit ihrer Vielzahl an kulturellen Angeboten und Einkaufsmöglichkeiten in kurzer Zeit erreichbar ist. Zusammengefasst vereint diese Lage die Ruhe eines Vororts mit der Bequemlichkeit städtischen Lebens.
Ansprechpartner: Jörg Schlüter 0421-2016014
Alle Angaben sind ohne Gewähr und basieren ausschließlich auf Informationen, die uns von unserem Auftraggeber zur Verfügung gestellt wurden. Wir übernehmen keine Gewähr für die Vollständigkeit, Richtigkeit und Aktualität dieser Angaben.
