in 28209 Bremen
- großzügiger Garten mit Terrasse (Südausrichtung) ca. 270m²
- Garage und Stellplatz
- hohe Decken bis 3,2m Höhe
- Parkettböden
- Küchenzeile mit Elektrogeräten
- Abstellmöglichkeit im Gemeinschaftskeller
Energieangaben:
Passtyp: Verbrauchsausweis
Datum der Ausstellung: 11.03.2026
Gültig bis: 10.03.2036
Effiziensklasse: E
Energiebedarf: 144,7 kWh/(m²a)
Wesentlicher Energieträger: Heizöl
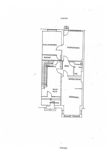
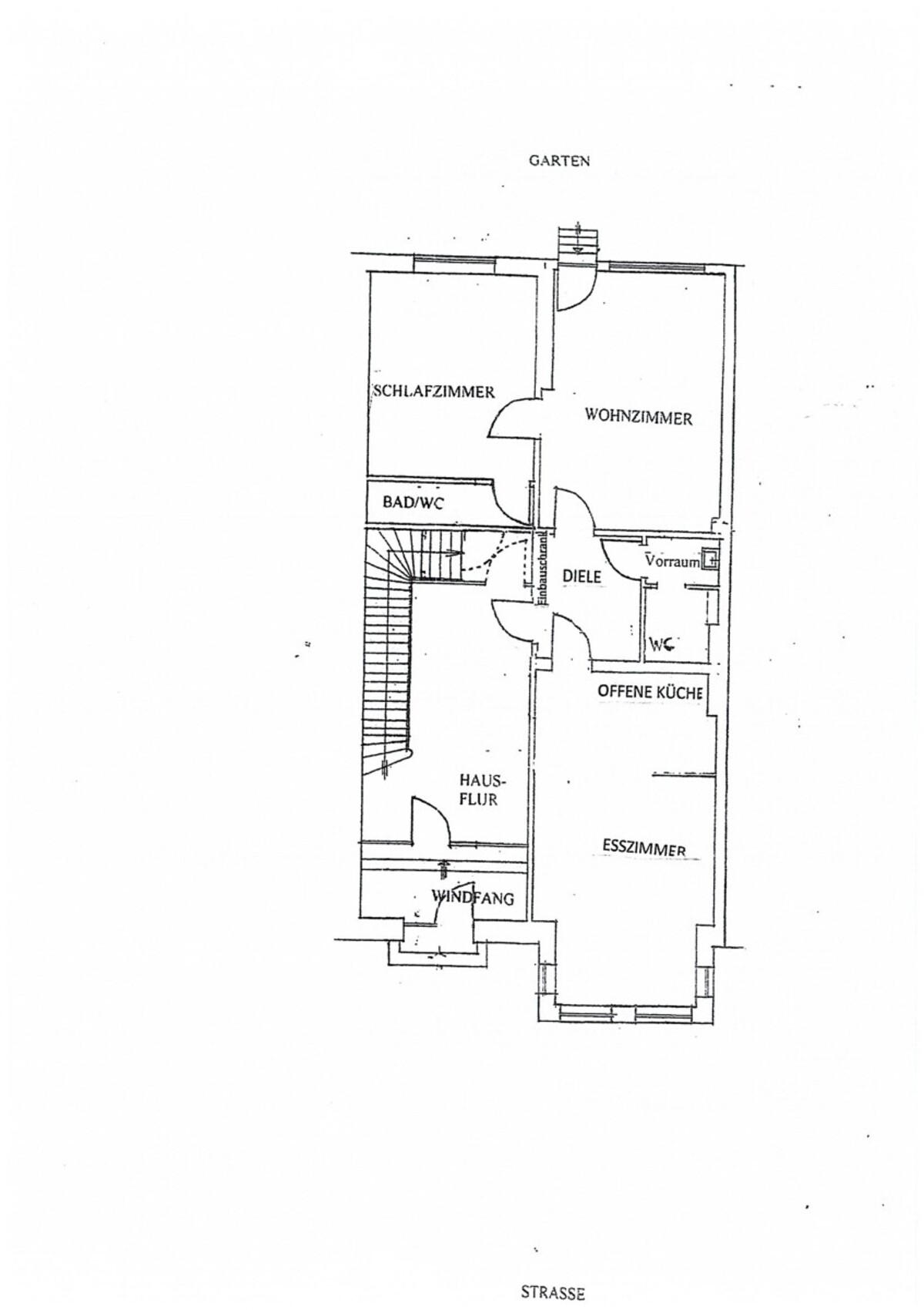
Diese helle 3-Zimmer-Wohnung im Hochparterre in einem Altbremerhaus in Bremen-Schwachhausen/Barkhof (Hollerallee) überzeugt mit ihrem Flair und ihrer klassischen Raumaufteilung sowie einer angenehmen Wohnatmosphäre, typischer Altbaucharme mit bis zu 3,20m hohen Decken.
Auf ca. 85 m² Wohnfläche stehen Ihnen zwei Schlafzimmer, ein Badezimmer mit Waschmaschinenanschluss, ein Gäste WC sowie ein großzügiger Wohn- und Essbereich mit einer zeitlosen Küchenzeile zur Verfügung. Diese Wohnung bietet Ihnen vielfältige Einrichtungsmöglichkeiten.
Im Flur befindet sich ein deckenhoher und breiter Einbauschrank der Ihnen viel Stauraum bietet, zusätzlich zu der Abstellmöglichkeit im Gemeinschaftskeller.
Zudem steht Ihnen der Garten (ca. 270 m²) zur Alleinnutzung mit einer Terrasse zur Verfügung, in dem Sie gerne Hand anlegen dürfen und es sich gemütlich machen können. Hier genießen Sie die Sonne, Ihren Feierabend und schöne Stunden mit Freunden und Familie.
Die Immobilie ist ab sofort verfügbar und eignet sich ideal für Paare oder Singles, die den besonderen Charme von Altbauten zu schätzen wissen auch Freude an einem Garten haben.
***Bitte beachten Sie, dass keine Haustiere gestattet sind.
Diese typische Altbau-Hochparterre-Wohnung befindet sich im begehrten Stadtteil Schwachhausen/Barkof in Bremen, nur 300 m von der Wachmannstraße entfernt. Die Umgebung zeichnet sich durch eine harmonische Mischung aus städtischem Flair und grünen Oasen aus. In unmittelbarer Nähe laden weitläufige Parks zu entspannenden Spaziergängen ein, während charmante Cafés und Boutiquen urbanes Lebensgefühl vermitteln. Die hervorragende Anbindung an den öffentlichen Nahverkehr ermöglicht eine schnelle Erreichbarkeit der Bremer Innenstadt sowie weiterer wichtiger Anlaufpunkte. Schulen, Kindergärten und medizinische Versorgungseinrichtungen sind ebenfalls in wenigen Minuten erreichbar. Schwachhausen bietet eine ideale Balance zwischen ruhigem Wohnen und lebendiger Umgebung.
Ansprechpartner: Simone Oertzen 0421-2016010
Alle Angaben sind ohne Gewähr und basieren ausschließlich auf Informationen, die uns von unserem Auftraggeber zur Verfügung gestellt wurden. Wir übernehmen keine Gewähr für die Vollständigkeit, Richtigkeit und Aktualität dieser Angaben.
